K系列螺旋錐齒減速機安裝事項及維護
朱朱
上海諾廣減速機
m.xety.cn
www.nuoguangsh.com
24小時熱線 :021-3731858 021-63731298
一、減速機安裝與使用的注意事項
1、安裝減速機時,應重視傳動中心軸線對中,其誤差不得大于所用聯軸器的使用補償量。對中良好能延長使用壽命,并獲得理想的傳動效率。
2、在輸出軸上安裝傳動件時,不允許 用錘子敲擊,通常利用裝配夾具和軸端的內螺紋,用螺栓將傳動件壓入,否則有可能造成減速機內部零件的損壞。最好不采用鋼性固定式聯軸器,因該類聯軸器安裝不當,會 引起不必要的外加載荷,以致造成軸承的早期損壞,嚴重時甚至造成輸出軸的斷裂。
3、減速機應牢固地安裝在穩定水平的基礎或底座上,排油槽的油應能排除,且冷卻空氣循環流 暢。基礎不可靠,運轉時會引起振動及噪聲,并促使軸承及齒輪受損。當傳動聯接件有突出 物或采用齒輪、鏈輪傳動時,應考慮加裝防護裝置,輸出軸上承受較大的徑向載荷時,應選用加強型。
4、按規定的安裝裝置保證工作人員能方便地靠近油標,通氣塞、排油塞。安裝就位后,應按次 序全面檢查安裝位置的準確性,各緊固件壓緊的可靠性, 安裝后應能靈活轉動。減速機采用油池飛濺潤滑,在運行前用戶需將通氣孔的螺塞取下, 換上通氣塞。按不同的安裝位置,并打開油位塞螺釘檢查油位線的高度,從油位塞處加油至潤滑油從油位塞螺孔溢出為止,擰上 油位塞確定無誤后,方可進行空載試運轉, 時間不得少于2小時。運轉應平穩,無沖擊、振動、雜音及滲漏油現象,發現異常應及時排除。 經過一定時期應再檢查油位,以防止機殼可能造成的泄漏,如環境溫度過高或過低時,可改變潤滑油的牌號。
二、減速機的檢查與維護
一般情況下,對于長起連續工作的減速機,按運行5000小時或每年一次更換新油,長期停用的減速機,在重新運轉之前亦應更換新油減速機應加入與原來牌號相同的油,不得與不同牌號的油相混用,牌號相同而粘度不同的油允許混合使用。
換油時要等待減速機冷卻下來無燃燒危險為止,但仍應保持溫熱,因為完全冷卻后,油的粘度增大,放油困難。注意:要切斷傳動裝置電源,防止無意間通電!
工作中,當發現油溫溫升超過80℃或油池溫度超過100℃及產生不正常的噪聲等現象時應停止使用,檢查原因,必須排除故障,更換潤滑油后,方可繼續運轉。
用戶應有合理的使用維護規章制度,對減速機的運轉情況和檢驗中發現的問題應作認真記錄,上述規定應嚴格執行。
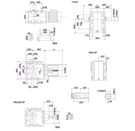
例如:K187螺旋錐齒減速機

上海諾廣機械有限公司
m.xety.cn
www.nuoguangsh.com
24小時熱線 :021-3731858 021-63731298
傳真:021-36537933 QQ: 1246595763
Email:1246595763@qq.com